
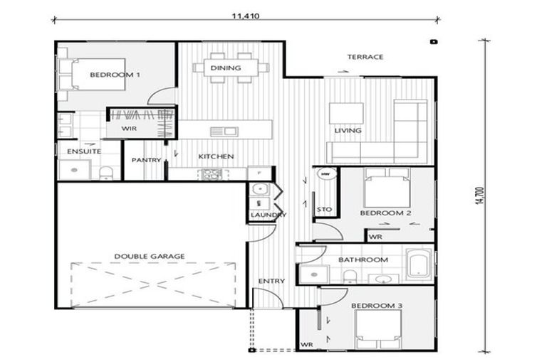
402 Main Road South, Paroa, Greymouth, 7805 is a Residential property built in 1945 with 3 bedrooms, 2 bathrooms and 1 parking space. The property is estimated to be valued in the range of $450,000 to $500,000.
It is unknown when the property was last sold or how much it was sold for. On 1 September 2024, 402 Main Road South, Paroa, Greymouth, 7805 had a Rating Valuation with a Capital Value of $425,000, Land Value of $160,000 and Improvement Value of $265,000.
| Date | Type | Price | Agent/Agency |
|---|---|---|---|
| 20 Aug 2025 | ASKING PRICE | $698,900 | Dan Schumacher of Green Homes New Zealand |
| 21 Dec 2024 | ASKING PRICE | $240,000 | Deedee Daly of Greg Daly Real Estate Ltd, (Licensed: Reaa 2008) |
Lot 1 Deposited Plan 609535
There are no similar properties in the area that are listed for sale or recently sold.