
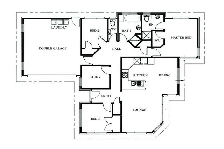
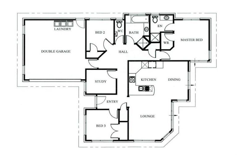
72 Crampton Road, Reefton, 7830 is a Residential property built in 2009 with 4 bedrooms, 2 bathrooms and 2 parking spaces. The property is estimated to be valued in the range of $500,000 to $550,000.
The property last sold on 17 July 2025 for an unknown price. It took 7 days to sell. On 1 October 2022, 72 Crampton Road, Reefton, 7830 had a Rating Valuation with a Capital Value of $450,000, Land Value of $90,000 and Improvement Value of $360,000.
| Date | Type | Price | Agent/Agency |
|---|---|---|---|
| 17 Jul 2025 | $0 | Pending Settlement Advice | |
| 9 Apr 2025 | ENQUIRIES OVER | $550,000 | |
| 16 Jan 2025 | ENQUIRIES OVER | $550,000 | |
| 1 May 2024 | ENQUIRIES OVER | $550,000 | |
| 12 Feb 2024 | ENQUIRIES OVER | $550,000 | |
| 9 Dec 2018 | SOLD | $285,000 | Ronnie Standfield of NZ Real Estate West Coast Ltd, (Licensed: Reaa 2008) |
| 9 Dec 2018 | SOLD | $285,000 | Ronnie Standfield of NZ Real Estate West Coast Ltd, (Licensed: Reaa 2008) |
| 27 Jul 2018 | ASKING PRICE | $320,000 | Ronnie Standfield of NZ Real Estate West Coast Ltd, Licensed Agent (Reaa 2008) |
| 27 Jul 2018 | ASKING PRICE | $320,000 | Ronnie Standfield of NZ Real Estate West Coast Ltd, Licensed Agent (Reaa 2008) |
| 20 Oct 2014 | DEADLINE PRIVATE TREATY | $320,000 | Jones Linda of Buller Real Estate Ltd Property Brokers, Westport |
| 14 May 2012 | SOLD | $310,000 | |
| 6 Apr 2011 | ASKING PRICE | $370,000 | |
| 1 Nov 2006 | SOLD | $45,000 |
Lot 2 Deposited Plan 14157
There are no similar properties in the area that are listed for sale or recently sold.