
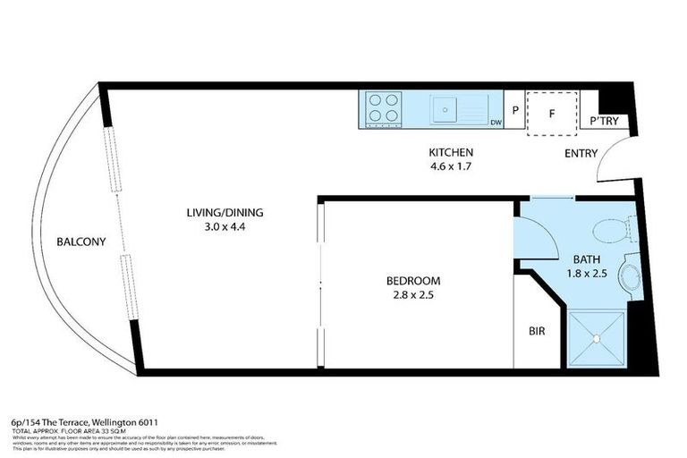
Atrium Towers, 6p/154 The Terrace, Wellington Central, Wellington, 6011 is a Residential property built in 2005 with 1 bedroom, 1 bathroom and 0 parking spaces. The property is estimated to be valued in the range of $300,000 to $325,000.
The property last sold on 11 May 2018 for $339,000. It was sold by Tommy's Real Estate Wellington City, and took 14 days to sell. On 1 September 2024, Atrium Towers, 6p/154 The Terrace, Wellington Central, Wellington, 6011 had a Rating Valuation with a Capital Value of $335,000, Land Value of $115,000 and Improvement Value of $220,000.
| Date | Type | Price | Agent/Agency |
|---|---|---|---|
| 8 Jun 2024 | Rented | $495 | Hannah Humphris of Tommys Property Management |
| 17 Feb 2023 | Rented | $530 | Hannah Humphris of Tommys Property Management |
| 13 Aug 2019 | Rented | $480 | Georgina Frude of Tommys Property Management |
| 11 May 2018 | SOLD | $339,000 | Alexia Stoddart of Tommy's Real Estate Wellington City |
| 28 Apr 2018 | ENQUIRIES OVER | $295,000 | Alexia Stoddart of Tommy's Real Estate Wellington City |
| 6 Sep 2003 | SOLD | $163,000 |
Lot 1-2 Deposited Plan 309308
There are no similar properties in the area that are listed for sale or recently sold.