
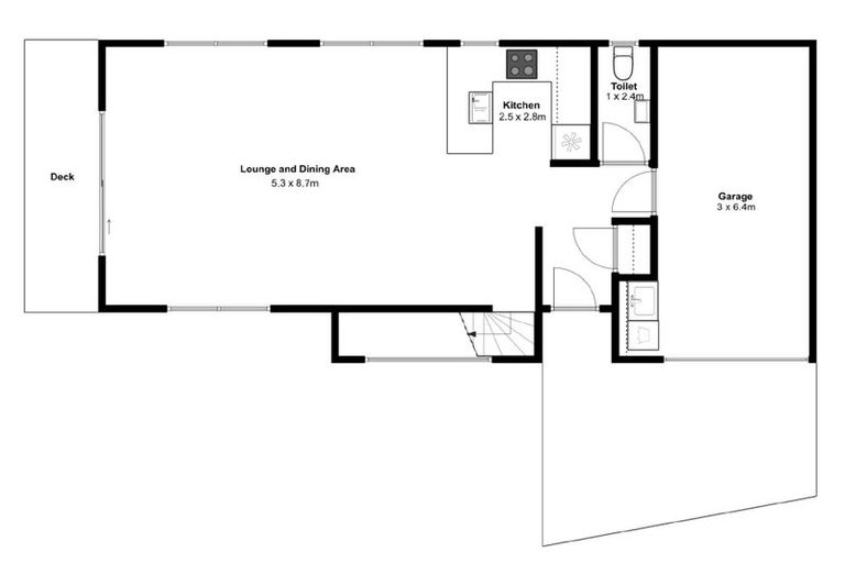
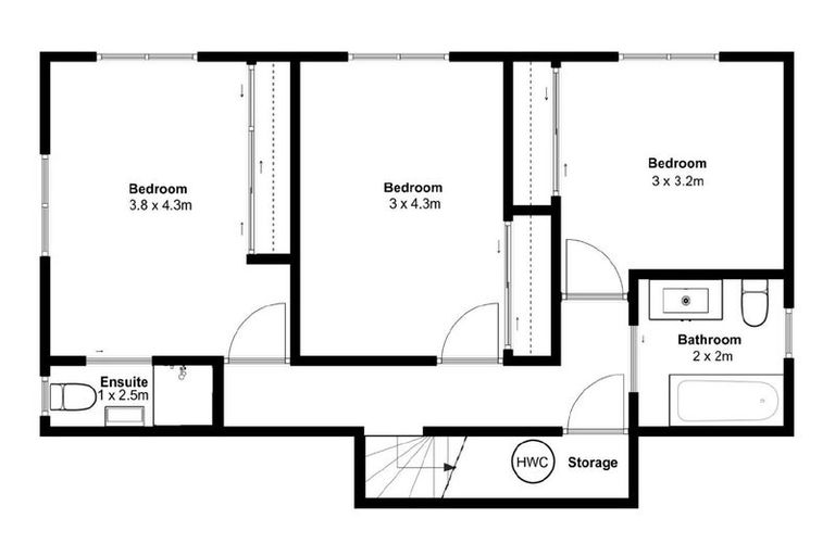
3a Chester Road, Tawa, Wellington, 5028 is a Residential property built in 2012 with 3 bedrooms, 2 bathrooms and 1 parking space. The property is estimated to be valued in the range of $750,000 to $800,000.
It is unknown when the property was last sold or how much it was sold for. On 1 September 2024, 3a Chester Road, Tawa, Wellington, 5028 had a Rating Valuation with a Capital Value of $820,000, Land Value of $220,000 and Improvement Value of $600,000.
| Date | Type | Price | Agent/Agency |
|---|---|---|---|
| 13 Oct 2025 | Rented | $650 | |
| 16 Sep 2025 | ENQUIRIES OVER | $785,000 | Nick Mahan of Lowe & Co, (Licensed: Reaa 2008) |
| 23 Oct 2023 | Rented | $700 | |
| 6 Jan 2022 | Rented | $700 |
Lot 1 Deposited Plan 463907
There are no similar properties in the area that are listed for sale or recently sold.