
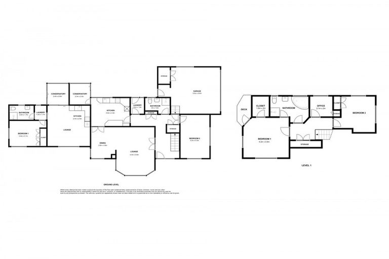
43 Burnham Street, Seatoun, Wellington, 6022 is a Residential property built in 1996 with 4 bedrooms, 3 bathrooms and 1 parking space. The property is estimated to be valued in the range of $1,600,000 to $1,800,000.
It is unknown when the property was last sold or how much it was sold for. On 1 September 2024, 43 Burnham Street, Seatoun, Wellington, 6022 had a Rating Valuation with a Capital Value of $1,700,000, Land Value of $1,210,000 and Improvement Value of $490,000.
| Date | Type | Price | Agent/Agency |
|---|---|---|---|
| 29 Apr 2022 | Rented | $930 | |
| 1 Feb 2022 | ASKING PRICE | $1,649,000 | Anastasia Hickey of Lowe & Co, (Licensed: Reaa 2008) |
| 8 Dec 2004 | DEADLINE PRIVATE TREATY | $840,000 | Eleanor Harford of Remax Kilbirnie & Eastern Districts |
Lot 7 Block XXII Deposited Plan 2258
There are no similar properties in the area that are listed for sale or recently sold.