1 of 27Oct 25
Loading...

1 Pinnacle Street Seatoun, 6022


1 Pinnacle Street , Seatoun, 6022
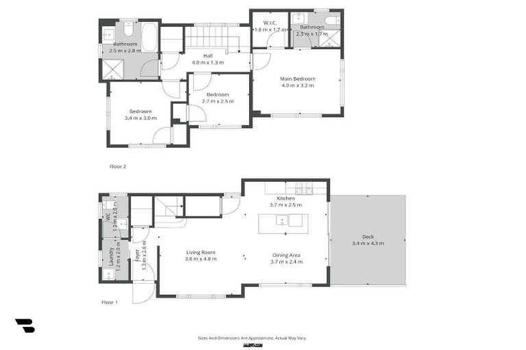
bed3
bathroom2
car-
land187 m2
floor-
Property Type
Residential
Year Built
-
Last Sold on 17 Nov 2025
Pending Settlement Advice
Settlement Date
-
Sold By
Project Realty, (Licensed: Reaa 2008)
Settlement Date
-
Sold By
Project Realty, (Licensed: Reaa 2008)

Estimated Value Range  


An estimate of value is not currently available for this property. There could be insufficient property information or recent sales data. The property could be out of scope (e.g. non-residential, highly unique, rural) or the estimate cannot be determined with high enough confidence.

About 1 Pinnacle Street, Seatoun, Wellington, 6022

1 Pinnacle Street, Seatoun, Wellington, 6022 is a Residential property with 3 bedrooms, 2 bathrooms and 0 parking spaces. Due to insufficient data, the value of the property cannot be estimated.

The property last sold on 17 November 2025 for an unknown price. It was sold by Project Realty, (Licensed: Reaa 2008), and took 43 days to sell. On 1 September 2024, 1 Pinnacle Street, Seatoun, Wellington, 6022 had a Rating Valuation with a Capital Value of $650,000 and Land Value of $650,000.

Property History

DateTypePriceAgent/Agency
17 Nov 2025$1,200,000Pending Settlement Advice
6 Oct 2025BY NEGOTIATIONPrice Not DisclosedRakesh Champaneri of Project Realty, (Licensed: Reaa 2008)
26 Aug 2014SOLD$845,000
5 Aug 2005SOLD$680,000
Present Day
17 Nov
2025
SOLD: Sale price not available
5 months 10 days
Pending Settlement Advice
6 Oct
2025
By Negotiation — Price Not Disclosed
Listed by Rakesh Champaneri of Project Realty, (Licensed: Reaa 2008)
26 Aug
2014
Sold for $845,000
11 years 8 months 1 day
5 Aug
2005
Sold for $680,000
20 years 8 months 22 days
Unknown
Property Built

Commute Calculator

-
-
-
-

Rating Valuation

Capital Value
$650,000
Land Value
$650,000
Improvement Value
-
Legal Description(s)

Lot 2 Deposited Plan 617715

Valuation Date
01-09-2024
Valuation Reference
17180/20901

Additional Information

Roof Construction
-
Zone
Residential Zone A, 9A
Units of Use
1
Wall Construction
-
Maori Land
No
Territorial Authority
Wellington City
Land Use
Vacant Residential

Suburb Insights

Comparable Properties

There are no similar properties in the area that are listed for sale or recently sold.