
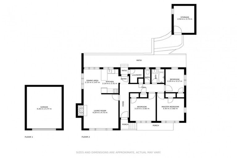
14 Lynda Avenue, Paparangi, Wellington, 6037 is a Residential property built in 1964 with 3 bedrooms, 1 bathroom and 1 parking space. The property is estimated to be valued in the range of $700,000 to $750,000.
The property last sold on 19 April 2022 for $920,000. It was sold by Professionals Whitby (Doublewinkel Real Estate Ltd Mreinz). On 1 September 2024, 14 Lynda Avenue, Paparangi, Wellington, 6037 had a Rating Valuation with a Capital Value of $710,000, Land Value of $405,000 and Improvement Value of $305,000.
| Date | Type | Price | Agent/Agency |
|---|---|---|---|
| 19 Apr 2022 | SOLD | $920,000 | Eileen Gillespie of Professionals Whitby (Doublewinkel Real Estate Ltd Mreinz) |
| 19 Jan 2022 | ENQUIRIES OVER | $950,000 | Eileen Gillespie of Professionals Whitby (Doublewinkel Real Estate Ltd Mreinz), (Licensed: Reaa 2008) |
| 29 Jul 2015 | DEADLINE PRIVATE TREATY | Price Not Disclosed | Mary Conroy of Double Winkel Real Estate Ltd Professionals, Pori |
| 7 Jul 2015 | SOLD | $395,750 | |
| 9 Jul 1986 | SOLD | $86,000 | |
| 23 Apr 1981 | SOLD | $40,500 |
Lot 44 Deposited Plan 25673
There are no similar properties in the area that are listed for sale or recently sold.