
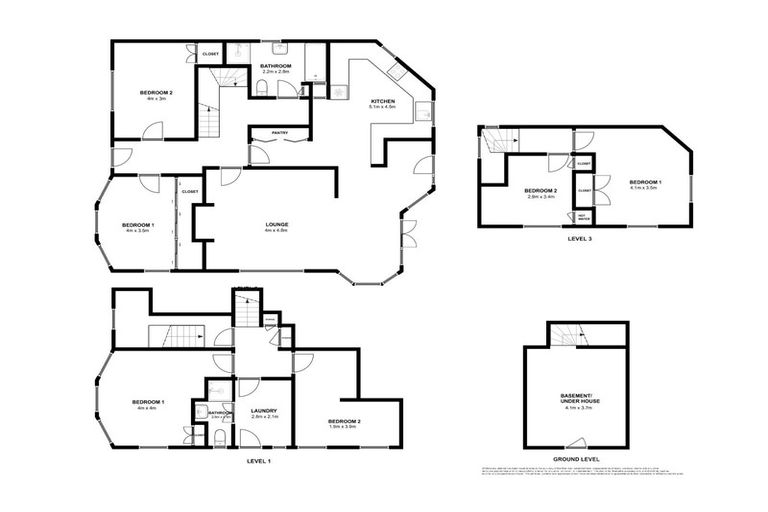
62 Orangi Kaupapa Road, Northland, Wellington, 6012 is a Residential property built in 1900 with 5 bedrooms, 2 bathrooms and 0 parking spaces. The property is estimated to be valued in the range of $800,000 to $900,000.
It is unknown when the property was last sold or how much it was sold for. On 1 September 2024, 62 Orangi Kaupapa Road, Northland, Wellington, 6012 had a Rating Valuation with a Capital Value of $800,000, Land Value of $660,000 and Improvement Value of $140,000.
| Date | Type | Price | Agent/Agency |
|---|---|---|---|
| 5 Apr 2022 | BY NEGOTIATION | Price Not Disclosed | Mike Robbers of Lowe & Co |
Lot 8 Deposited Plan 1771
There are no similar properties in the area that are listed for sale or recently sold.