
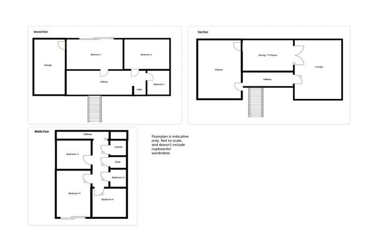
2 Flint Way, Northland, Wellington, 6012 is a Residential property built in 1983 with 4 bedrooms, 2 bathrooms and 1 parking space. The property is estimated to be valued in the range of $800,000 to $900,000.
It is unknown when the property was last sold or how much it was sold for. On 1 September 2024, 2 Flint Way, Northland, Wellington, 6012 had a Rating Valuation with a Capital Value of $840,000, Land Value of $550,000 and Improvement Value of $290,000.
| Date | Type | Price | Agent/Agency |
|---|---|---|---|
| 30 Jan 2025 | Rented | $950 | |
| 6 Sep 2020 | Rented | $195 | |
| 9 Nov 2016 | TENDER | Price Not Disclosed | Chris Day of Professionals; Redcoats Limited (Wellington City) |
Lot 84 Deposited Plan 33790
There are no similar properties in the area that are listed for sale or recently sold.