
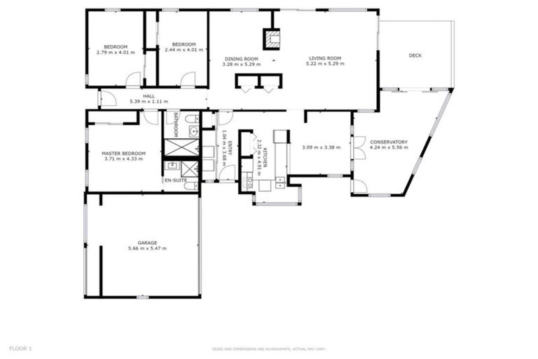
1 Lanark Way, Northland, Wellington, 6012 is a Residential property built in 1975 with 3 bedrooms, 2 bathrooms and 2 parking spaces. The property is estimated to be valued in the range of $700,000 to $750,000.
It is unknown when the property was last sold or how much it was sold for. On 1 September 2024, 1 Lanark Way, Northland, Wellington, 6012 had a Rating Valuation with a Capital Value of $730,000, Land Value of $530,000 and Improvement Value of $200,000.
| Date | Type | Price | Agent/Agency |
|---|---|---|---|
| 11 Mar 2020 | DEADLINE PRIVATE TREATY | Price Not Disclosed | Clare Newton Smith of Team Khandallah Limited, (Licensed: Reaa 2008) |
| 25 Jan 2017 | ENQUIRIES OVER | $665,000 | Mark Hamilton of Tommy's Real Estate Wellington City |
Lot 49 Deposited Plan 34916
There are no similar properties in the area that are listed for sale or recently sold.