
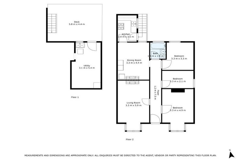
48 Hall Street, Newtown, Wellington, 6021 is a Residential property built in 1907 with 3 bedrooms, 1 bathroom and 0 parking spaces. The property is estimated to be valued in the range of $800,000 to $900,000.
The property last sold on 21 October 2025 for an unknown price. It was sold by Harcourts Wellington City. On 1 September 2024, 48 Hall Street, Newtown, Wellington, 6021 had a Rating Valuation with a Capital Value of $800,000, Land Value of $600,000 and Improvement Value of $200,000.
| Date | Type | Price | Agent/Agency |
|---|---|---|---|
| 21 Oct 2025 | $566,500 | Pending Settlement Advice | |
| 26 Aug 2025 | BY NEGOTIATION | Price Not Disclosed | Ryan Hopkins of Team Group Realty Limited, Harcourts Wellington City, (Licensed: Reaa 2008) |
Lot 3 Deposited Plan 1106
There are no similar properties in the area that are listed for sale or recently sold.