1 of 32Dec 24
Loading...

23 Donald Mclean Street Newtown, 6021


23 Donald Mclean Street , Newtown, 6021
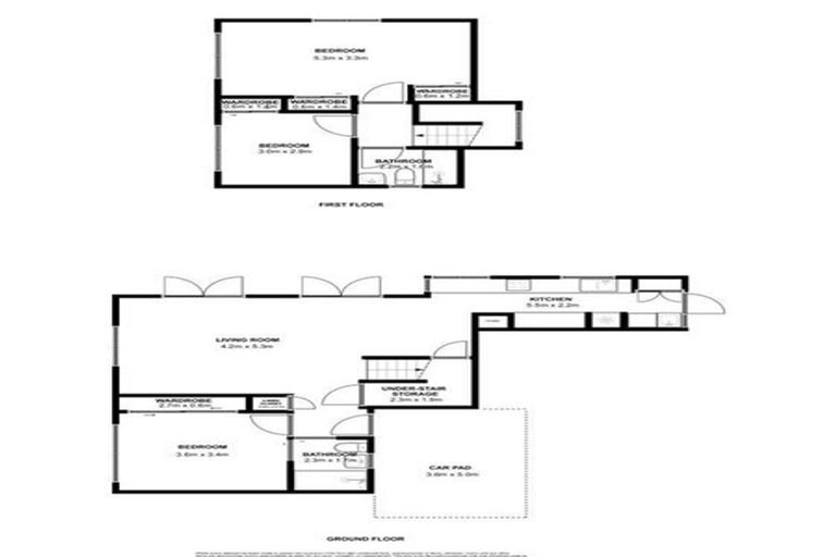
bed3
bathroom2
car1
land220 m2
floor112 m2
Property Type
Residential
Year Built
1900
Last Sale information not available

Estimated Value Range  


An estimate of value is not currently available for this property. There could be insufficient property information or recent sales data. The property could be out of scope (e.g. non-residential, highly unique, rural) or the estimate cannot be determined with high enough confidence.

About 23 Donald Mclean Street, Newtown, Wellington, 6021

23 Donald Mclean Street, Newtown, Wellington, 6021 is a Residential property built in 1900 with 3 bedrooms, 2 bathrooms and 1 parking space. Due to insufficient data, the value of the property cannot be estimated.

It is unknown when the property was last sold or how much it was sold for. On 1 September 2024, 23 Donald Mclean Street, Newtown, Wellington, 6021 had a Rating Valuation with a Capital Value of $1,080,000, Land Value of $590,000 and Improvement Value of $490,000.

Property History

DateTypePriceAgent/Agency
19 Dec 2024Rented$780Despina Raei of Nest Property Management Ltd
22 Nov 2022ENQUIRIES OVER$1,095,000Emma Young of Lowe & Co
Present Day
19 Dec
2024
Listed for Rent - Last price at $780 per week
Listed by Despina Raei of Nest Property Management Ltd
22 Nov
2022
Enquiries Over — $1,095,000
Listed by Emma Young of Lowe & Co
1900
Property Built

Commute Calculator

-
-
-
-

Rating Valuation

Capital Value
$1,080,000
Land Value
$590,000
Improvement Value
$490,000
Legal Description(s)

Lot 2 Deposited Plan 5255

Valuation Date
01-09-2024
Valuation Reference
17340/36200

Additional Information

Roof Construction
Steel/G-Iron
Zone
Residential Zone B, 9B
Units of Use
1
Wall Construction
Weatherboard
Maori Land
No
Territorial Authority
Wellington City
Land Use
-

Suburb Insights

Comparable Properties

There are no similar properties in the area that are listed for sale or recently sold.