
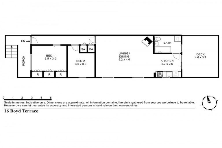
16 Boyd Terrace, Newtown, Wellington, 6021 is a Residential property built in 1890 with 2 bedrooms, 1 bathroom and 1 parking space. The property is estimated to be valued in the range of $750,000 to $800,000.
It is unknown when the property was last sold or how much it was sold for. On 1 September 2024, 16 Boyd Terrace, Newtown, Wellington, 6021 had a Rating Valuation with a Capital Value of $840,000, Land Value of $600,000 and Improvement Value of $240,000.
| Date | Type | Price | Agent/Agency |
|---|---|---|---|
| 27 Jan 2022 | ENQUIRIES OVER | $795,000 | Mitchell Sedgwick of Lowe & Co, (Licensed: Reaa 2008) |
Lot 1 Deposited Plan 54724
There are no similar properties in the area that are listed for sale or recently sold.