
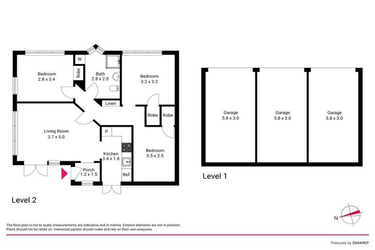
24 Myrtle Crescent, Mount Cook, Wellington, 6021 is a Residential property built in 1950 with 3 bedrooms, 1 bathroom and 3 parking spaces. The property is estimated to be valued in the range of $800,000 to $900,000.
It is unknown when the property was last sold or how much it was sold for. On 1 September 2024, 24 Myrtle Crescent, Mount Cook, Wellington, 6021 had a Rating Valuation with a Capital Value of $910,000, Land Value of $630,000 and Improvement Value of $280,000.
| Date | Type | Price | Agent/Agency |
|---|---|---|---|
| 28 Oct 2024 | TENDER | Price Not Disclosed | Charles Morley-Hall of Just Paterson |
| 8 Feb 2023 | Rented | $740 | Tracey Carnihan of Stable Property Management |
| 5 May 2020 | UNKNOWN | Price Not Disclosed | Lincoln Carlyle of Stable Property Matters |
Lot 2 Deposited Plan 482131
There are no similar properties in the area that are listed for sale or recently sold.