
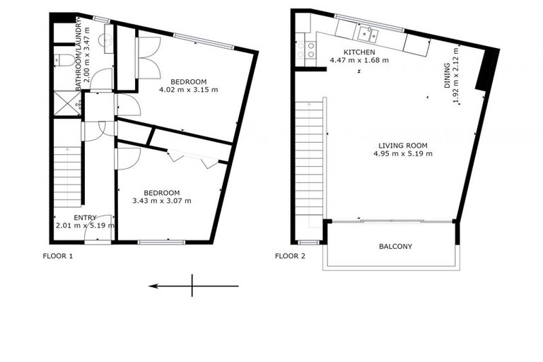
201 Tasman Street, Mount Cook, Wellington, 6021 is a Residential property built in 2005 with 2 bedrooms, 1 bathroom and 7 parking spaces. The property is estimated to be valued in the range of $550,000 to $600,000.
The property last sold on 21 October 2020 for $676,000. It was sold by Tall Poppy Wellington No. 1, and took 60 days to sell. On 1 September 2024, 201 Tasman Street, Mount Cook, Wellington, 6021 had a Rating Valuation with a Capital Value of $600,000, Land Value of $300,000 and Improvement Value of $300,000.
| Date | Type | Price | Agent/Agency |
|---|---|---|---|
| 21 Oct 2020 | SOLD | $676,000 | |
| 23 Aug 2020 | ENQUIRIES OVER | $650,000 | Paul Doney & Sabine Chong of Tall Poppy Wellington No. 1 |
| 11 Jan 2008 | SOLD | $418,500 | |
| 11 Dec 2003 | SOLD | $278,000 |
Unit 24 Deposited Plan 312064
There are no similar properties in the area that are listed for sale or recently sold.