
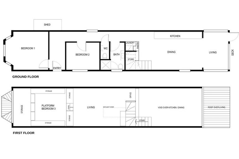
10 Carrington Street, Mount Cook, Wellington, 6021 is a Residential property built in 1905 with 3 bedrooms, 1 bathroom and 0 parking spaces. The property is estimated to be valued in the range of $900,000 to $1,000,000.
The property last sold on 26 March 2015 for $560,000. It was sold by Team Wellington Ltd, and took 10 days to sell. On 1 September 2024, 10 Carrington Street, Mount Cook, Wellington, 6021 had a Rating Valuation with a Capital Value of $970,000, Land Value of $550,000 and Improvement Value of $420,000.
| Date | Type | Price | Agent/Agency |
|---|---|---|---|
| 26 Mar 2015 | SOLD | $560,000 | Erin Rush of Team Wellington Ltd |
| 17 Mar 2015 | ENQUIRIES OVER | $515,000 | Erin Rush of Team Wellington Ltd |
| 18 Jun 2008 | SOLD | $478,000 | Margo McAuley of Tommys |
| 14 Jun 2008 | DEADLINE PRIVATE TREATY | $460,000 | Margo McAuley of Tommys |
| 6 Mar 2002 | SOLD | $195,000 | |
| 6 Jun 1986 | SOLD | $64,000 | |
| 6 Sep 1984 | SOLD | $34,000 |
Lot 2 Deposited Plan 5088
There are no similar properties in the area that are listed for sale or recently sold.