
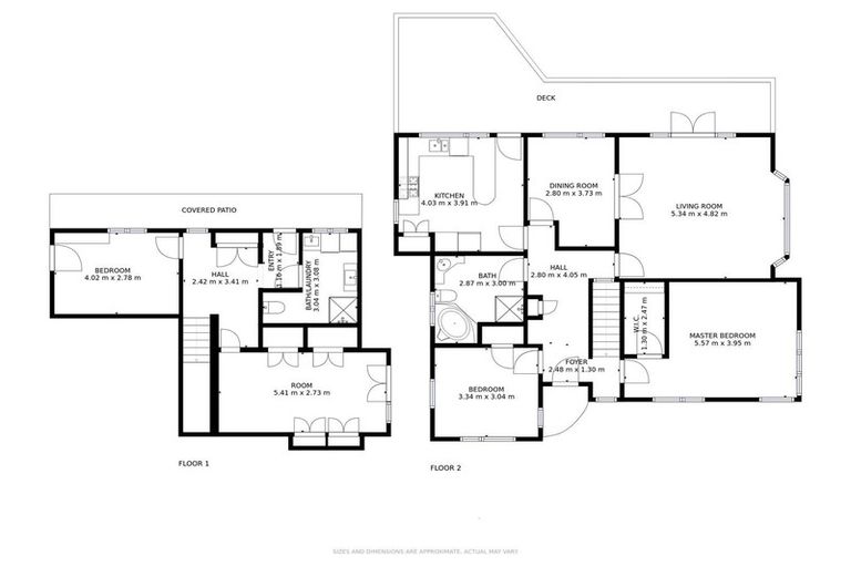
9 Shortland Street, Khandallah, Wellington, 6035 is a Residential property built in 1940 with 4 bedrooms, 2 bathrooms and 0 parking spaces. The property is estimated to be valued in the range of $900,000 to $1,000,000.
It is unknown when the property was last sold or how much it was sold for. On 1 September 2024, 9 Shortland Street, Khandallah, Wellington, 6035 had a Rating Valuation with a Capital Value of $1,030,000, Land Value of $470,000 and Improvement Value of $560,000.
| Date | Type | Price | Agent/Agency |
|---|---|---|---|
| 21 Apr 2022 | AUCTION | Price Not Disclosed | Chris Hurley of Team Khandallah Limited |
Part Lot 3 Deposited Plan 2216
There are no similar properties in the area that are listed for sale or recently sold.