
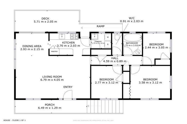
5 Ruth Grove, Karori, Wellington, 6012 is a Residential property built in 1978 with 3 bedrooms, 1 bathroom and 2 parking spaces. The property is estimated to be valued in the range of $750,000 to $800,000.
The property last sold on 17 April 2025 for $775,000. It was sold by Professionals Wellington, and took 92 days to sell. On 1 September 2024, 5 Ruth Grove, Karori, Wellington, 6012 had a Rating Valuation with a Capital Value of $790,000, Land Value of $440,000 and Improvement Value of $350,000.
| Date | Type | Price | Agent/Agency |
|---|---|---|---|
| 17 Apr 2025 | SOLD | $775,000 | |
| 16 Jan 2025 | ENQUIRIES OVER | $795,000 | Andrea Skews of Professionals Wellington |
Lot 29 Deposited Plan 45608
There are no similar properties in the area that are listed for sale or recently sold.