
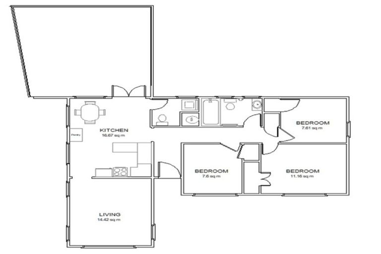
105 Severn Street, Island Bay, Wellington, 6023 is a Residential property built in 1962 with 3 bedrooms, 1 bathroom and 1 parking space. The property is estimated to be valued in the range of $800,000 to $900,000.
It is unknown when the property was last sold or how much it was sold for. On 1 September 2024, 105 Severn Street, Island Bay, Wellington, 6023 had a Rating Valuation with a Capital Value of $880,000, Land Value of $480,000 and Improvement Value of $400,000.
| Date | Type | Price | Agent/Agency |
|---|---|---|---|
| 18 Dec 2023 | Rented | $775 | Myrent.Co.Nz of Myrent.Co.NZ Ltd |
| 10 Mar 2022 | Rented | $750 | Myrent.Co.Nz of Myrent.Co.NZ Ltd |
Lot 1 Deposited Plan 407821
There are no similar properties in the area that are listed for sale or recently sold.