
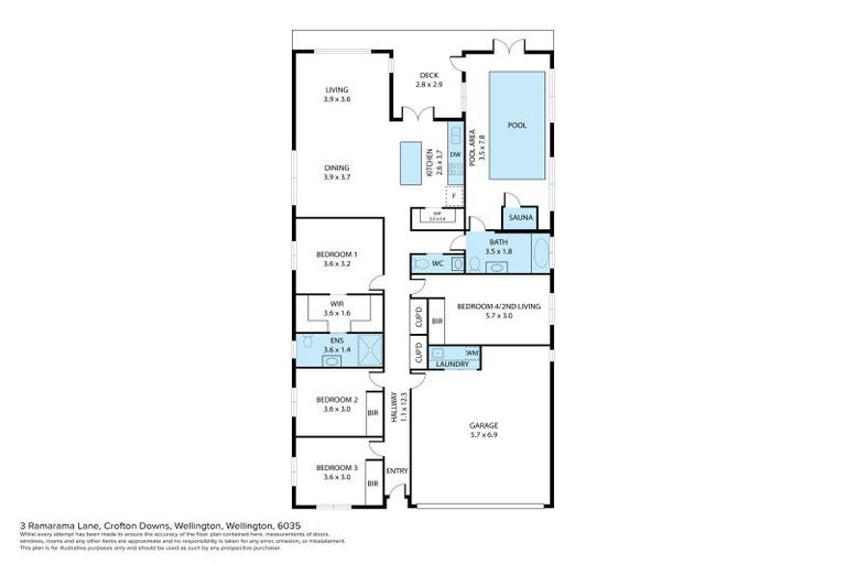
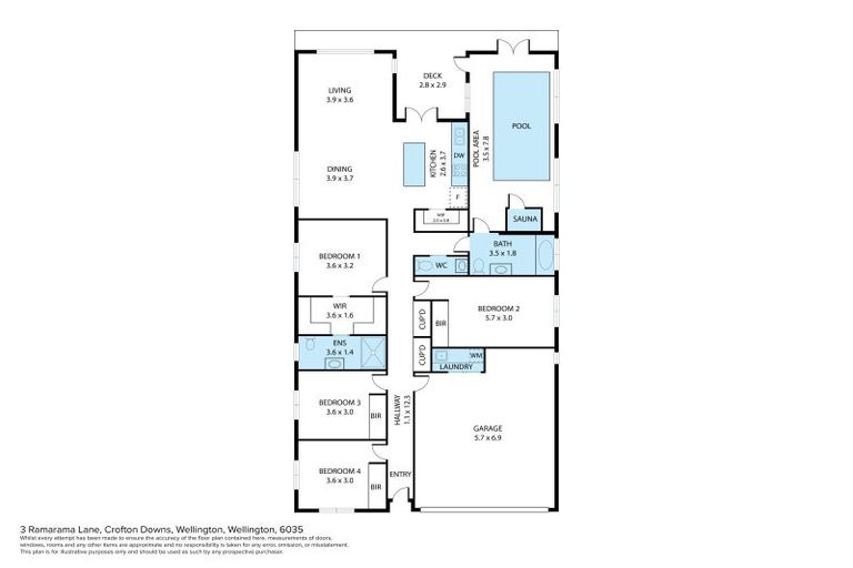
3 Ramarama Lane, Crofton Downs, Wellington, 6035 is a Residential property built in 2021 with 4 bedrooms, 1 bathroom and 2 parking spaces. The property is estimated to be valued in the range of $1,500,000 to $1,600,000.
The property last sold on 25 August 2025 for $1,500,000. It was sold by Sothebys. On 1 September 2024, 3 Ramarama Lane, Crofton Downs, Wellington, 6035 had a Rating Valuation with a Capital Value of $1,240,000, Land Value of $440,000 and Improvement Value of $800,000.
| Date | Type | Price | Agent/Agency |
|---|---|---|---|
| 25 Aug 2025 | SOLD | $1,500,000 | |
| 7 Aug 2025 | ENQUIRIES OVER | $1,495,000 | |
| 2 May 2025 | BY NEGOTIATION | Price Not Disclosed | Marina Scoble of New Zealand Sotheby's International Realty Wellington, (Licensed: Reaa 2008) |
| 1 Jan 1930 | SOLD | $0 |
Lot 98 Deposited Plan 538699
There are no similar properties in the area that are listed for sale or recently sold.