
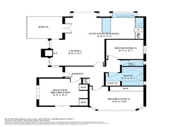
41a Washington Avenue, Brooklyn, Wellington, 6021 is a Residential property built in 1919 with 3 bedrooms, 1 bathroom and 1 parking space. The property is estimated to be valued in the range of $1,300,000 to $1,400,000.
The property last sold on 4 September 2024 for $1,340,000. It was sold by Lowe & Co, (Licensed: Reaa 2008), and took 20 days to sell. On 1 September 2024, 41a Washington Avenue, Brooklyn, Wellington, 6021 had a Rating Valuation with a Capital Value of $1,300,000, Land Value of $790,000 and Improvement Value of $510,000.
| Date | Type | Price | Agent/Agency |
|---|---|---|---|
| 4 Sep 2024 | SOLD | $1,340,000 | |
| 16 Aug 2024 | ENQUIRIES OVER | $1,295,000 | Tania O'Connor of Lowe & Co, (Licensed: Reaa 2008) |
| 2 Jul 2024 | Rented | $920 | Jo Butters of Tommys Property Management |
| 19 Jul 2022 | Rented | $890 | Ella Faulkner of Tommys Property Management |
| 23 Apr 2013 | SOLD | $675,500 | Paula O'Connor of Just Paterson Real Estate Ltd Mreinz |
| 2 Apr 2013 | ENQUIRIES OVER | $690,000 | Paula O'Connor of Just Paterson Real Estate Ltd Mreinz |
| 22 May 2006 | SOLD | $580,000 | Sally Seavill of Remax |
| 17 Apr 2006 | DEADLINE PRIVATE TREATY | $550,000 | Sally Seavill of Remax |
| 2 Jul 2002 | SOLD | $380,000 | |
| 2 Jun 1993 | SOLD | $138,000 |
Lot 2 Deposited Plan 12551
There are no similar properties in the area that are listed for sale or recently sold.