
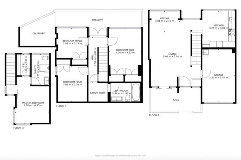
32 Tiketike Way, Brooklyn, Wellington, 6021 is a Residential property built in 2008 with 4 bedrooms, 2 bathrooms and 2 parking spaces. The property is estimated to be valued in the range of $900,000 to $1,000,000.
The property last sold on 18 September 2019 for $890,000. It was sold by Tall Poppy Real Estate. On 1 September 2024, 32 Tiketike Way, Brooklyn, Wellington, 6021 had a Rating Valuation with a Capital Value of $990,000, Land Value of $425,000 and Improvement Value of $565,000.
| Date | Type | Price | Agent/Agency |
|---|---|---|---|
| 18 Sep 2019 | SOLD | $890,000 | |
| 9 Sep 2019 | ASKING PRICE | $825,000 | Paul Doney & Sabine Chong of Tall Poppy Wellington No. 1 |
| 14 Jun 2011 | SOLD | $525,000 | David Vaughan of Tommy's Real Estate |
| 26 Mar 2011 | DEADLINE PRIVATE TREATY | $530,000 | David Vaughan of Tommy's Real Estate |
| 1 Dec 2008 | SOLD | $487,500 |
Lot 87 Deposited Plan 402066
There are no similar properties in the area that are listed for sale or recently sold.