
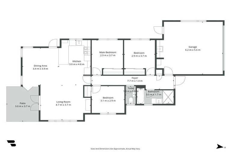
36 Sheridan Crescent, Trentham, Upper Hutt, 5018 is a Residential property built in 2007 with 3 bedrooms, 1 bathroom and 1 parking space. The property is estimated to be valued in the range of $750,000 to $800,000.
The property last sold on 16 February 2026 for an unknown price. It was sold by Bayleys Hutt Valley, (Licensed: Reaa 2008), and took 25 days to sell. On 1 June 2025, 36 Sheridan Crescent, Trentham, Upper Hutt, 5018 had a Rating Valuation with a Capital Value of $750,000, Land Value of $370,000 and Improvement Value of $380,000.
| Date | Type | Price | Agent/Agency |
|---|---|---|---|
| 16 Feb 2026 | $0 | Pending Settlement Advice | |
| 13 Oct 2025 | ENQUIRIES OVER | $820,000 | Michelle Andrews of Bayleys Hutt Valley, (Licensed: Reaa 2008) |
Lot 1 Deposited Plan 373285
There are no similar properties in the area that are listed for sale or recently sold.