
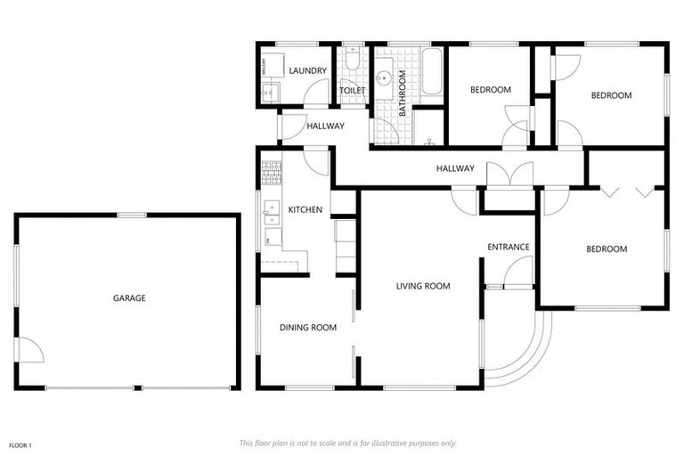
21 Longfellow Street, Trentham, Upper Hutt, 5018 is a Residential property built in 1971 with 3 bedrooms, 1 bathroom and 2 parking spaces. The property is estimated to be valued in the range of $700,000 to $750,000.
The property last sold on 16 January 2022 for $863,000. It was sold by Tall Poppy Upper Hutt, and took 70 days to sell. On 1 July 2022, 21 Longfellow Street, Trentham, Upper Hutt, 5018 had a Rating Valuation with a Capital Value of $750,000, Land Value of $530,000 and Improvement Value of $220,000.
| Date | Type | Price | Agent/Agency |
|---|---|---|---|
| 16 Jan 2022 | SOLD | $863,000 | Brian Childs & Andrea Childs of Tall Poppy Upper Hutt |
| 8 Nov 2021 | ENQUIRIES OVER | $849,000 | Brian Childs & Andrea Childs of Tall Poppy Upper Hutt |
Lot 37 Deposited Plan 29455
There are no similar properties in the area that are listed for sale or recently sold.