
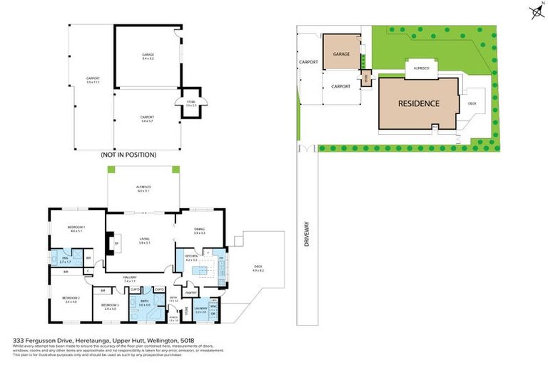
333 Fergusson Drive, Heretaunga, Upper Hutt, 5018 is a Residential property built in 1981 with 3 bedrooms, 2 bathrooms and 5 parking spaces. The property is estimated to be valued in the range of $900,000 to $1,000,000.
The property last sold on 14 May 2025 for an unknown price. It was sold by Team Group Realty Limited, Harcourts Upper Hutt. On 1 July 2022, 333 Fergusson Drive, Heretaunga, Upper Hutt, 5018 had a Rating Valuation with a Capital Value of $1,050,000, Land Value of $740,000 and Improvement Value of $310,000.
| Date | Type | Price | Agent/Agency |
|---|---|---|---|
| 14 May 2025 | $0 | Pending Settlement Advice | |
| 22 Apr 2025 | ASKING PRICE | Price Not Disclosed | Mike Ledger of Harcourts Upper Hutt |
| 7 May 2018 | BY NEGOTIATION | Price Not Disclosed | Mike Ledger of Bayleys Real Estate Ltd, Licensed Agent (Reaa 2008) |
| 14 Nov 2000 | SOLD | $320,000 | |
| 11 Feb 1996 | SOLD | $245,000 | |
| 19 Dec 1980 | SOLD | $22,000 |
Lot 2 Deposited Plan 46847
There are no similar properties in the area that are listed for sale or recently sold.