
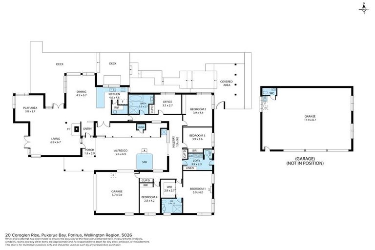
20 Coroglen Rise, Pukerua Bay, 5026 is a Lifestyle property built in 2001 with 5 bedrooms, 2 bathrooms and 5 parking spaces. The property is estimated to be valued in the range of $2,200,000 to $2,400,000.
It is unknown when the property was last sold or how much it was sold for. On 1 October 2022, 20 Coroglen Rise, Pukerua Bay, 5026 had a Rating Valuation with a Capital Value of $2,400,000, Land Value of $1,100,000 and Improvement Value of $1,300,000.
| Date | Type | Price | Agent/Agency |
|---|---|---|---|
| 19 Oct 2025 | ENQUIRIES OVER | $2,495,000 | Charlie Cooling of Team Group Realty Limited, Harcourts Paremata, (Licensed: Reaa 2008) |
| 1 Nov 2021 | ASKING PRICE | Price Not Disclosed |
Lot 12 Deposited Plan 86666
There are no similar properties in the area that are listed for sale or recently sold.