
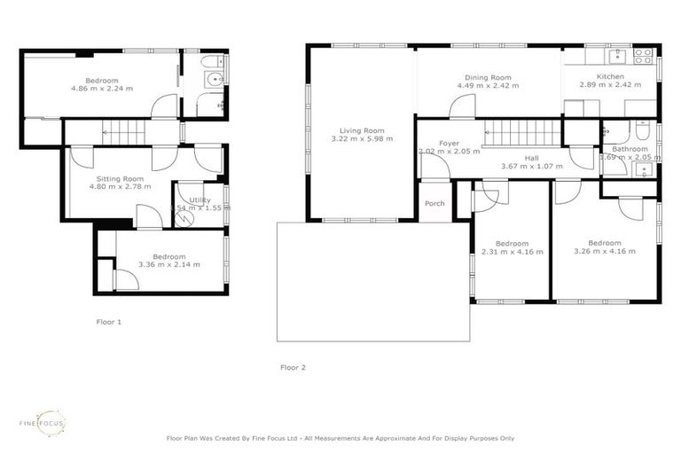
7 Cheshire Street, Cannons Creek, Porirua, 5024 is a Residential property built in 1963 with 4 bedrooms, 1 bathroom and 1 parking space. The property is estimated to be valued in the range of $550,000 to $600,000.
The property last sold on 15 August 2025 for an unknown price. On 1 October 2022, 7 Cheshire Street, Cannons Creek, Porirua, 5024 had a Rating Valuation with a Capital Value of $510,000, Land Value of $350,000 and Improvement Value of $160,000.
| Date | Type | Price | Agent/Agency |
|---|---|---|---|
| 15 Aug 2025 | $0 | Pending Settlement Advice | |
| 8 Nov 2024 | SOLD | $650,000 | |
| 21 May 2024 | Rented | $700 | John Clark of Harcourts Tawa Realty Limited, (Licensed: Reaa 2008) |
| 22 Feb 2024 | Rented | $700 | Rentcare of Rentcare Property Management |
| 26 Jul 2018 | SOLD | $328,000 | Christine Burton of Villa Realty Ltd Ray White, Porirua Licensed: Reaa 2008 |
| 10 Jul 2018 | ASKING PRICE | Price Not Disclosed | Christine Burton of Villa Realty Ltd Ray White, Porirua Licensed: Reaa 2008 |
| 21 Sep 2011 | SOLD | $175,000 | |
| 7 Sep 2011 | ASKING PRICE | $160,000 | |
| 31 Aug 2010 | AUCTION | Price Not Disclosed | Karen Ryan of Remax Villa Tawa |
| 23 Feb 2010 | DEADLINE PRIVATE TREATY | $259,000 | Karen Ryan of Remax Leaders Tawa Pukerua Bay |
| 13 Nov 1993 | SOLD | $50,000 |
Lot 55 Deposited Plan 21474
There are no similar properties in the area that are listed for sale or recently sold.