
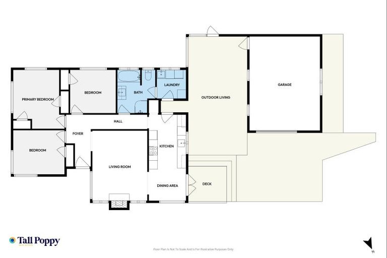
21 Old Coach Road South, Otaki Beach, Otaki, 5512 is a Residential property built in 1961 with 3 bedrooms, 1 bathroom and 2 parking spaces. The property is estimated to be valued in the range of $600,000 to $650,000.
The property last sold on 20 November 2025 for an unknown price. It was sold by Tall Poppy Otaki Limited, (Licensed: Reaa 2008), and took 40 days to sell. On 1 August 2023, 21 Old Coach Road South, Otaki Beach, Otaki, 5512 had a Rating Valuation with a Capital Value of $570,000, Land Value of $305,000 and Improvement Value of $265,000.
| Date | Type | Price | Agent/Agency |
|---|---|---|---|
| 20 Nov 2025 | $0 | Pending Settlement Advice | |
| 12 Oct 2025 | ENQUIRIES OVER | $695,000 | Jayden Matthews of Tall Poppy Otaki Limited, (Licensed: Reaa 2008) |
| 6 Sep 2017 | ASKING PRICE | $380,000 | |
| 8 Aug 2012 | ASKING PRICE | $230,000 | Tony McEwan of Team Mkh Ltd |
Lot 40 Deposited Plan 762
There are no similar properties in the area that are listed for sale or recently sold.