
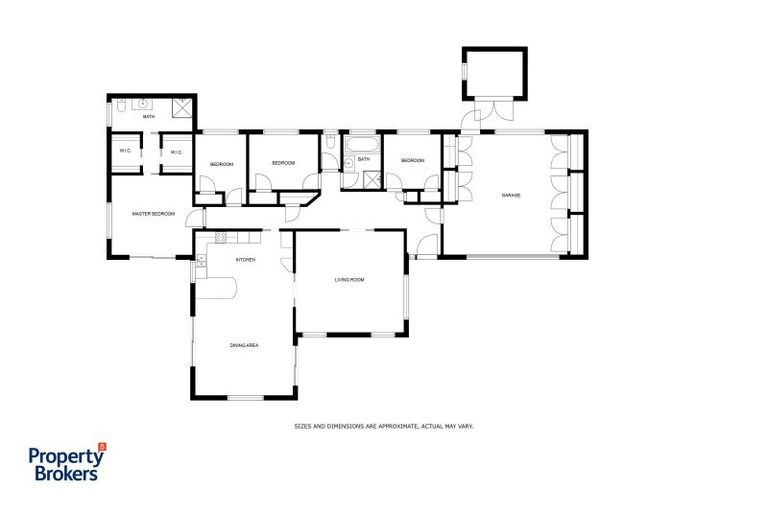
18 Ludlam Way, Otaki, 5512 is a Residential property built in 2006 with 4 bedrooms, 2 bathrooms and 2 parking spaces. The property is estimated to be valued in the range of $800,000 to $900,000.
It is unknown when the property was last sold or how much it was sold for. On 1 August 2023, 18 Ludlam Way, Otaki, 5512 had a Rating Valuation with a Capital Value of $850,000, Land Value of $365,000 and Improvement Value of $485,000.
| Date | Type | Price | Agent/Agency |
|---|---|---|---|
| 3 Feb 2023 | ENQUIRIES OVER | $925,000 | Travis Robertson of Property Brokers Otaki, (Licensed: Reaa 2008) |
| 23 Jul 2022 | ENQUIRIES OVER | $995,000 | Maureen Wallace of Kelly & Co |
Lot 5 Deposited Plan 356329
There are no similar properties in the area that are listed for sale or recently sold.