
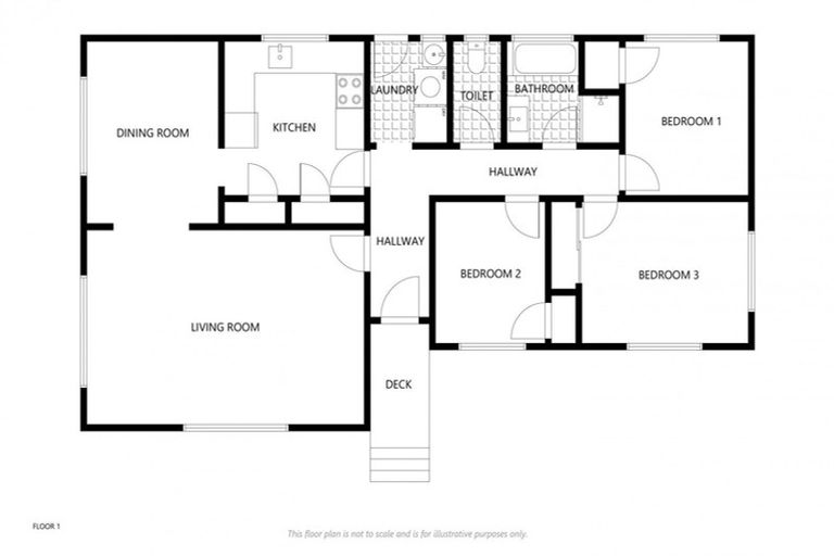
103 Main Highway, Otaki, 5512 is a Residential property built in 1978 with 3 bedrooms, 1 bathroom and 1 parking space. The property is estimated to be valued in the range of $500,000 to $550,000.
It is unknown when the property was last sold or how much it was sold for. On 1 August 2023, 103 Main Highway, Otaki, 5512 had a Rating Valuation with a Capital Value of $465,000, Land Value of $250,000 and Improvement Value of $215,000.
| Date | Type | Price | Agent/Agency |
|---|---|---|---|
| 16 Jun 2021 | ASKING PRICE | $600,000 | Brendon Heenan of Tall Poppy Otaki Limited |
| 13 Jun 2009 | ASKING PRICE | $175,000 |
Lot 1 Deposited Plan 40820
There are no similar properties in the area that are listed for sale or recently sold.