
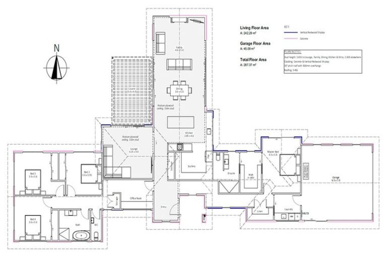
28 Nickle Road, Cambridge, 3495 is a Lifestyle property built in 2022 with 4 bedrooms, 2 bathrooms and 2 parking spaces. The property is estimated to be valued in the range of $1,800,000 to $2,000,000.
The property last sold on 3 November 2023 for $2,220,000. It was sold by Bayleys Hamilton, (Licensed: Reaa 2008), and took 59 days to sell. On 1 August 2022, 28 Nickle Road, Cambridge, 3495 had a Rating Valuation with a Capital Value of $2,160,000, Land Value of $730,000 and Improvement Value of $1,430,000.
| Date | Type | Price | Agent/Agency |
|---|---|---|---|
| 3 Nov 2023 | SOLD | $2,220,000 | |
| 6 Sep 2023 | ASKING PRICE | $2,250,000 | Angela Finnigan of Bayleys Hamilton, (Licensed: Reaa 2008) |
| 30 Aug 2022 | BY NEGOTIATION | Price Not Disclosed | |
| 28 Jul 2022 | SOLD | $730,000 |
Lot 1 Deposited Plan 570209
There are no similar properties in the area that are listed for sale or recently sold.