
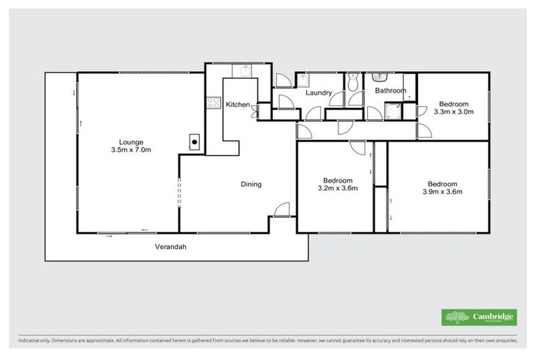
4/193 Racecourse Road, Cambridge, 3493 is a Lifestyle property built in 1985 with 3 bedrooms, 1 bathroom and 1 parking space. The property is estimated to be valued in the range of $1,100,000 to $1,200,000.
The property last sold on 23 April 2025 for an unknown price. It was sold by Cambridge Real Estate, and took 85 days to sell. On 1 August 2022, 4/193 Racecourse Road, Cambridge, 3493 had a Rating Valuation with a Capital Value of $1,290,000, Land Value of $900,000 and Improvement Value of $390,000.
| Date | Type | Price | Agent/Agency |
|---|---|---|---|
| 23 Apr 2025 | SOLD | $0 | |
| 27 Jan 2025 | ASKING PRICE | $1,250,000 | David Soar of Cambridge Real Estate |
| 30 Nov 2018 | SOLD | $800,000 | Graham Cook B Com. Ag, Registered Valuer of Harcourts Cambridge |
| 14 Sep 2018 | ASKING PRICE | $810,000 | Graham Cook B Com. Ag, Registered Valuer of Harcourts Cambridge |
| 4 Apr 2004 | SOLD | $350,000 | |
| 27 Mar 1997 | SOLD | $260,000 | |
| 2 Dec 1985 | SOLD | $89,000 |
Lot 1 Deposited Plan 341493
There are no similar properties in the area that are listed for sale or recently sold.