
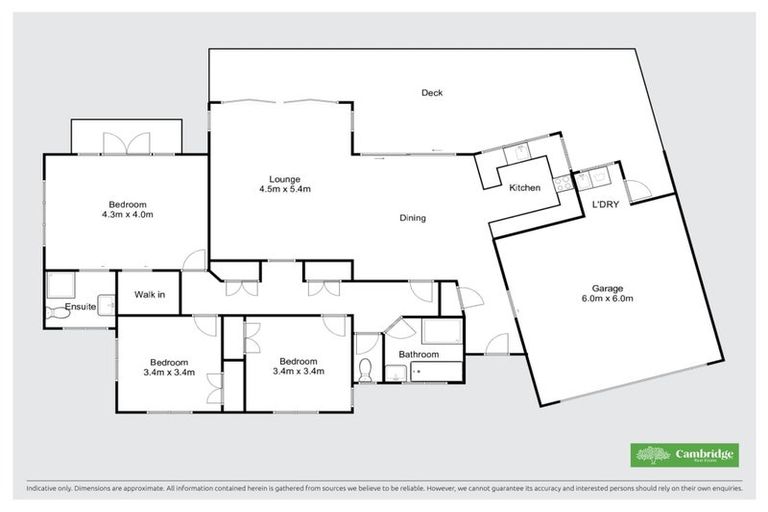
2a Princes Street, Cambridge, 3434 is a Residential property built in 1996 with 3 bedrooms, 2 bathrooms and 2 parking spaces. The property is estimated to be valued in the range of $1,100,000 to $1,200,000.
The property last sold on 28 October 2025 for an unknown price. It was sold by Cambridge Real Estate. On 1 August 2022, 2a Princes Street, Cambridge, 3434 had a Rating Valuation with a Capital Value of $1,110,000, Land Value of $610,000 and Improvement Value of $500,000.
| Date | Type | Price | Agent/Agency |
|---|---|---|---|
| 28 Oct 2025 | SOLD | $0 | |
| 1 Oct 2025 | BY NEGOTIATION | Price Not Disclosed | Amy De Clifford of Cambridge Real Estate, (Licensed: Reaa 2008) |
Lot 2 Deposited Plan South Auckland 70406
There are no similar properties in the area that are listed for sale or recently sold.