
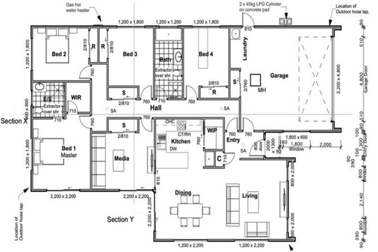
267 Kupe Drive, Whitianga, 3510 is a Residential property built in 2022 with 4 bedrooms, 2 bathrooms and 2 parking spaces. The property is estimated to be valued in the range of $1,200,000 to $1,300,000.
The property last sold on 19 July 2023 for $1,195,000. It was sold by Richardsons Whitianga Limited, (Licensed: Reaa 2008), and took 280 days to sell. On 1 July 2023, 267 Kupe Drive, Whitianga, 3510 had a Rating Valuation with a Capital Value of $1,170,000, Land Value of $550,000 and Improvement Value of $620,000.
| Date | Type | Price | Agent/Agency |
|---|---|---|---|
| 19 Jul 2023 | SOLD | $1,195,000 | Abby Lawrence of Richardsons Whitianga Limited, (Licensed: Reaa 2008) |
| 13 Oct 2022 | ASKING PRICE | $1,195,000 | Abby Lawrence of Richardsons Whitianga Limited, (Licensed: Reaa 2008) |
| 22 Apr 2022 | ASKING PRICE | $1,459,000 | Sancha Heydenrych of North Real Estate |
| 24 May 2021 | SOLD | $420,000 |
Lot 586 Deposited Plan 556395
There are no similar properties in the area that are listed for sale or recently sold.