
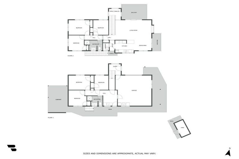
315b Mary Road, Whangamata, 3620 is a Residential property built in 1988 with 4 bedrooms, 2 bathrooms and 1 parking space. The property is estimated to be valued in the range of $1,300,000 to $1,400,000.
The property last sold on 22 March 2024 for $1,422,000. It was sold by Whangamata Real Estate Ltd Mreinz, (Licensed: Reaa 2008), and took 31 days to sell. On 1 July 2023, 315b Mary Road, Whangamata, 3620 had a Rating Valuation with a Capital Value of $1,215,000, Land Value of $720,000 and Improvement Value of $495,000.
| Date | Type | Price | Agent/Agency |
|---|---|---|---|
| 22 Mar 2024 | SOLD | $1,422,000 | |
| 21 Feb 2024 | BY NEGOTIATION | Price Not Disclosed | Sharon Laurenson of Whangamata Real Estate Ltd Mreinz, (Licensed: Reaa 2008) |
| 4 Nov 2015 | SOLD | $545,000 | Gordon Turner of Pacific Coast Realty Ltd First National, Whangama |
| 14 Oct 2015 | ASKING PRICE | $545,000 | Gordon Turner of Pacific Coast Realty Ltd First National, Whangama |
| 23 Jul 1987 | SOLD | $28,500 |
Lot 1 Deposited Plan South Auckland 2580
There are no similar properties in the area that are listed for sale or recently sold.