
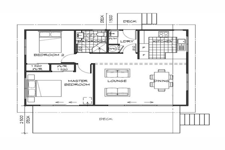
130 Korokoro Crescent, Thames, 3500 is a Residential property built in 2022 with 2 bedrooms, 1 bathroom and 1 parking space. The property is estimated to be valued in the range of $600,000 to $650,000.
The property last sold on 24 March 2025 for an unknown price. It was sold by Raine & Horne Thames / Paeroa, (Licensed: Reaa 2008), and took 172 days to sell. On 1 July 2023, 130 Korokoro Crescent, Thames, 3500 had a Rating Valuation with a Capital Value of $820,000, Land Value of $275,000 and Improvement Value of $545,000.
| Date | Type | Price | Agent/Agency |
|---|---|---|---|
| 24 Mar 2025 | SOLD | $0 | |
| 24 Sep 2024 | ENQUIRIES OVER | $599,000 | Jay Dellar of Raine & Horne Thames / Paeroa, (Licensed: Reaa 2008) |
| 6 Sep 2022 | ASKING PRICE | $669,000 | Jay Dellar of Mike Pero Thames Coast |
| 26 Dec 2020 | ASKING PRICE | $630,000 | Kathy Muir of Richardsons Real Estate Ltd (Thames) Mreinz |
| 10 Sep 2019 | SOLD | $195,000 | Philip Judd of Richardsons Real Estate Ltd (Thames) Mreinz |
| 23 Apr 2019 | ASKING PRICE | $210,000 | Philip Judd of Richardsons Real Estate Ltd (Thames) Mreinz |
| 7 Apr 2016 | SOLD | $150,000 | |
| 1 Jan 1930 | SOLD | $0 |
Lot 12 Deposited Plan 387365
There are no similar properties in the area that are listed for sale or recently sold.