1 of 47Oct 23
Loading...

145 Vista Paku Pauanui, 3579


145 Vista Paku , Pauanui, 3579
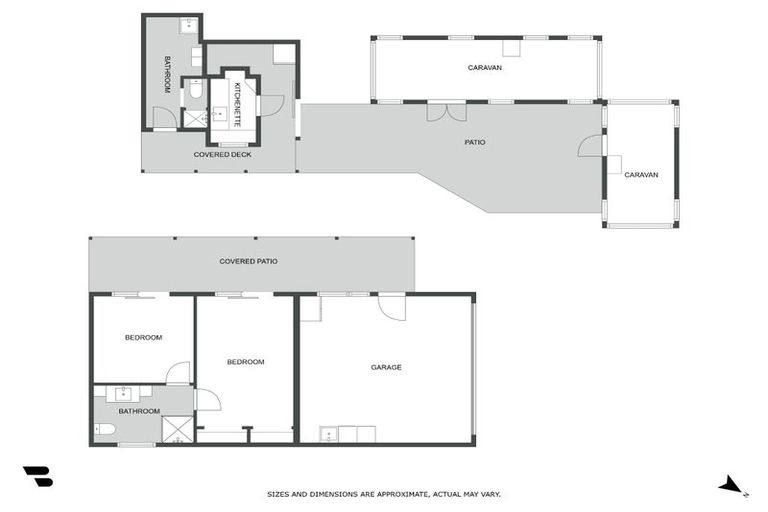
bed2
bathroom2
car2
land607 m2
floor-
Property Type
Residential
Year Built
-
Last Sold on 20 Oct 2023 for $860,000
Settlement Date
24 Nov 2023
Sold By
Harcourts Pauanui (Paradise Coast Realty Ltd), (Licensed: Reaa 2008)
Settlement Date
24 Nov 2023
Sold By
Harcourts Pauanui (Paradise Coast Realty Ltd), (Licensed: Reaa 2008)

Estimated Value Range  


An estimate of value is not currently available for this property. There could be insufficient property information or recent sales data. The property could be out of scope (e.g. non-residential, highly unique, rural) or the estimate cannot be determined with high enough confidence.

About 145 Vista Paku, Pauanui, Hikuai, 3579

145 Vista Paku, Pauanui, Hikuai, 3579 is a Residential property with 2 bedrooms, 2 bathrooms and 2 parking spaces. Due to insufficient data, the value of the property cannot be estimated.

The property last sold on 20 October 2023 for $860,000. It was sold by Harcourts Pauanui (Paradise Coast Realty Ltd), (Licensed: Reaa 2008), and took 93 days to sell. On 1 July 2023, 145 Vista Paku, Pauanui, Hikuai, 3579 had a Rating Valuation with a Capital Value of $800,000, Land Value of $630,000 and Improvement Value of $170,000.

Property History

DateTypePriceAgent/Agency
20 Oct 2023SOLD$860,000
20 Jul 2023ASKING PRICE$895,000Katie Wardenburg of Harcourts Pauanui (Paradise Coast Realty Ltd), (Licensed: Reaa 2008)
16 Oct 2019SOLD$520,000Lottie Ashwell of Richardsons Real Estate Ltd (Pauanui) Mreinz, (Licensed: Reaa 2008)
25 Sep 2019ASKING PRICE$525,000Lottie Ashwell of Richardsons Real Estate Ltd (Pauanui) Mreinz, (Licensed: Reaa 2008)
12 Jan 2016SOLD$317,500Neil Christie of Richardsons Real Estate Ltd Pauanui
29 Jul 2015ASKING PRICE$349,000Neil Christie of Richardsons Real Estate Ltd Pauanui
15 Sep 2013ASKING PRICE$349,000Neil Christie of Richardsons Real Estate Ltd (Pauanui) Mreinz
1 Mar 2003SOLD$141,000
31 May 1994SOLD$62,000
30 Sep 1985SOLD$108,000
10 Sep 1983SOLD$78,000
Present Day
20 Oct
2023
Sold for $860,000
2 years 2 months 13 days
20 Jul
2023
Asking Price — $895,000
Listed by Katie Wardenburg of Harcourts Pauanui (Paradise Coast Realty Ltd), (Licensed: Reaa 2008)
16 Oct
2019
Sold for $520,000
6 years 2 months 17 days
Sold by Lottie Ashwell of Richardsons Real Estate Ltd (Pauanui) Mreinz, (Licensed: Reaa 2008)
25 Sep
2019
Asking Price — $525,000
Listed by Lottie Ashwell of Richardsons Real Estate Ltd (Pauanui) Mreinz, (Licensed: Reaa 2008)
12 Jan
2016
Sold for $317,500
9 years 11 months 21 days
Sold by Neil Christie of Richardsons Real Estate Ltd Pauanui
29 Jul
2015
Asking Price — $349,000
Listed by Neil Christie of Richardsons Real Estate Ltd Pauanui
15 Sep
2013
Asking Price — $349,000
Listed by Neil Christie of Richardsons Real Estate Ltd (Pauanui) Mreinz
1 Mar
2003
Sold for $141,000
22 years 10 months 4 days
31 May
1994
Sold for $62,000
31 years 7 months 2 days
30 Sep
1985
Sold for $108,000
40 years 3 months 3 days
10 Sep
1983
Sold for $78,000
42 years 3 months 23 days
Unknown
Property Built

Commute Calculator

-
-
-
-

Rating Valuation

Capital Value
$800,000
Land Value
$630,000
Improvement Value
$170,000
Legal Description(s)

Lot 7 Deposited Plan South Auckland 15116

Valuation Date
01-07-2023
Valuation Reference
4991/71500

Additional Information

Roof Construction
-
Zone
Residential Zone A, 9A
Units of Use
1
Wall Construction
-
Maori Land
No
Territorial Authority
Thames-coromandel District
Land Use
Vacant Residential

Suburb Insights

Comparable Properties

There are no similar properties in the area that are listed for sale or recently sold.