
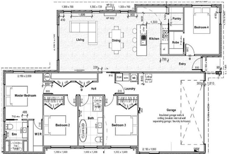
17 Barberry Drive, Morrinsville, 3300 is a Residential property built in 2020 with 3 bedrooms, 1 bathroom and 0 parking spaces. The property is estimated to be valued in the range of $800,000 to $900,000.
It is unknown when the property was last sold or how much it was sold for. On 1 July 2024, 17 Barberry Drive, Morrinsville, 3300 had a Rating Valuation with a Capital Value of $870,000, Land Value of $310,000 and Improvement Value of $560,000.
| Date | Type | Price | Agent/Agency |
|---|---|---|---|
| 3 Aug 2025 | Rented | $730 | Shannon Excell of LJ Hooker Morrinsville, (Licensed: Reaa 2008) |
Lot 108 Deposited Plan 583188
There are no similar properties in the area that are listed for sale or recently sold.