
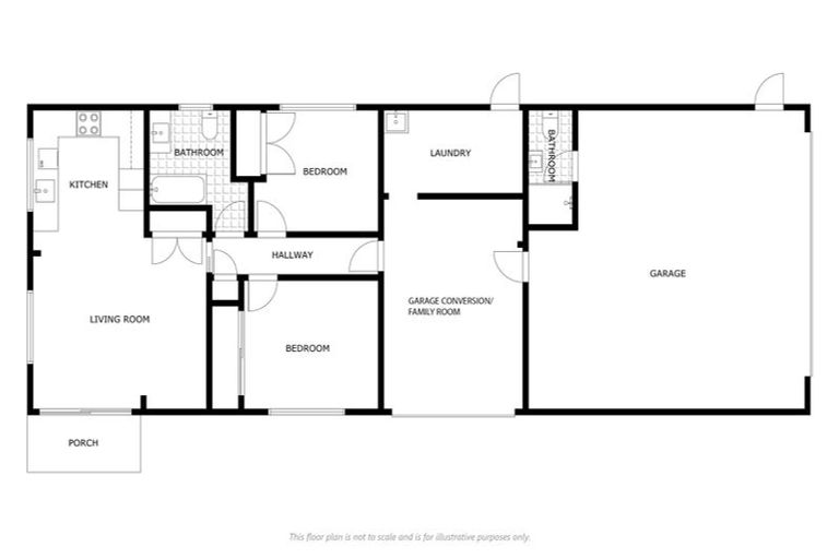
34 Tauranga Road, Waihi, 3610 is a Residential property built in 2000 with 2 bedrooms, 2 bathrooms and 3 parking spaces. The property is estimated to be valued in the range of $550,000 to $600,000.
The property last sold on 11 March 2026 for an unknown price. It was sold by Harcourts Waihi - Gold Star Real Estate Limited, (Licensed: Reaa 2008), and took 2 days to sell. On 1 September 2024, 34 Tauranga Road, Waihi, 3610 had a Rating Valuation with a Capital Value of $600,000, Land Value of $240,000 and Improvement Value of $360,000.
| Date | Type | Price | Agent/Agency |
|---|---|---|---|
| 11 Mar 2026 | $0 | Pending Settlement Advice | |
| 19 Oct 2025 | ASKING PRICE | $649,000 | Ashley Munn of Harcourts Waihi - Gold Star Real Estate Limited, (Licensed: Reaa 2008) |
Lot 1 Deposited Plan 551769
There are no similar properties in the area that are listed for sale or recently sold.