
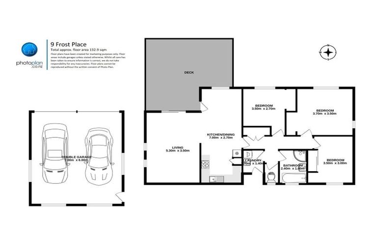
9 Frost Place, Pukete, Hamilton, 3200 is a Residential property built in 1980 with 3 bedrooms, 1 bathroom and 2 parking spaces. The property is estimated to be valued in the range of $750,000 to $800,000.
The property last sold on 17 June 2025 for $740,000. It was sold by Lugtons Limited, (Licensed: Reaa 2008), and took 7 days to sell. On 1 September 2024, 9 Frost Place, Pukete, Hamilton, 3200 had a Rating Valuation with a Capital Value of $720,000, Land Value of $510,000 and Improvement Value of $210,000.
| Date | Type | Price | Agent/Agency |
|---|---|---|---|
| 17 Jun 2025 | SOLD | $740,000 | |
| 11 Jun 2025 | ASKING PRICE | $695,000 | Terry Ryan of Lugtons Limited, (Licensed: Reaa 2008) |
| 8 Dec 2011 | DEADLINE PRIVATE TREATY | $329,000 | Terry Ryan of Lugtons |
| 8 Jun 2011 | ASKING PRICE | $324,000 |
Lot 66 Deposited Plan South Auckland 22371
There are no similar properties in the area that are listed for sale or recently sold.