
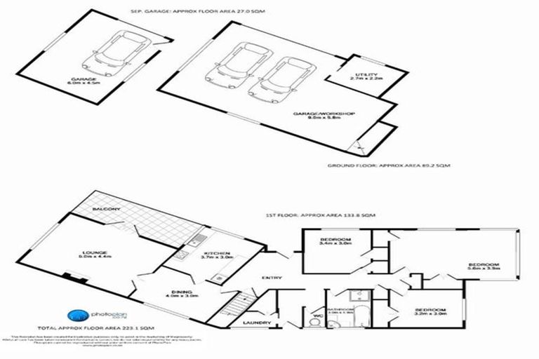
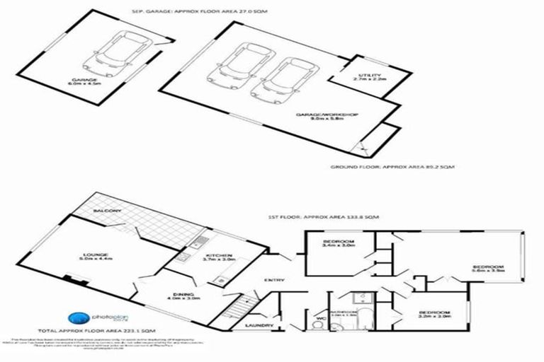
91 Tawa Street, Melville, Hamilton, 3206 is a Residential property built in 1961 with 3 bedrooms, 1 bathroom and 0 parking spaces. The property is estimated to be valued in the range of $750,000 to $800,000.
The property last sold on 17 November 2015 for $414,000. It was sold by Monarch Real Estate Ltd Harcourts, Glenview, and took 35 days to sell. On 1 September 2021, 91 Tawa Street, Melville, Hamilton, 3206 had a Rating Valuation with a Capital Value of $780,000, Land Value of $585,000 and Improvement Value of $195,000.
| Date | Type | Price | Agent/Agency |
|---|---|---|---|
| 29 Jan 2025 | Rented | $650 | Helen Robinson of Ultimate Properties Waikato Ltd, (Licensed: Reaa 2008) |
| 17 Jul 2023 | Rented | $595 | Renaldi Kotze of Ultimate Properties Waikato Ltd, (Licensed: Reaa 2008) |
| 1 Sep 2022 | Rented | $550 | Apollo Property Management Ltd of Apollo Property Management Limited |
| 3 Oct 2018 | Rented | $440 | Apollo Property Management Ltd of Apollo Property Management Limited |
| 17 Nov 2015 | SOLD | $414,000 | Craig McLeod of Monarch Real Estate Ltd Harcourts, Glenview |
| 14 Oct 2015 | AUCTION | Price Not Disclosed | Craig McLeod of Monarch Real Estate Ltd Harcourts, Glenview |
| 7 Oct 2010 | ASKING PRICE | $325,000 | |
| 11 Nov 1991 | SOLD | $101,000 |
Lot 3 Deposited Plan South Auckland 6361
There are no similar properties in the area that are listed for sale or recently sold.