
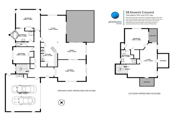
58 Keswick Crescent, Huntington, Hamilton, 3210 is a Residential property built in 1996 with 3 bedrooms, 2 bathrooms and 0 parking spaces. The property is estimated to be valued in the range of $900,000 to $1,000,000.
The property last sold on 3 December 2024 for $950,000. It was sold by Lugtons Limited, (Licensed: Reaa 2008), and took 15 days to sell. On 1 September 2021, 58 Keswick Crescent, Huntington, Hamilton, 3210 had a Rating Valuation with a Capital Value of $1,125,000, Land Value of $670,000 and Improvement Value of $455,000.
| Date | Type | Price | Agent/Agency |
|---|---|---|---|
| 3 Dec 2024 | SOLD | $950,000 | |
| 19 Nov 2024 | BY NEGOTIATION | Price Not Disclosed | Heather Whyte of Lugtons Limited, (Licensed: Reaa 2008) |
| 16 Mar 1999 | SOLD | $85,000 | |
| 15 Jul 1998 | SOLD | $81,500 | |
| 24 Jan 1997 | SOLD | $69,500 |
Lot 196 Deposited Plan South Auckland 72963
There are no similar properties in the area that are listed for sale or recently sold.