
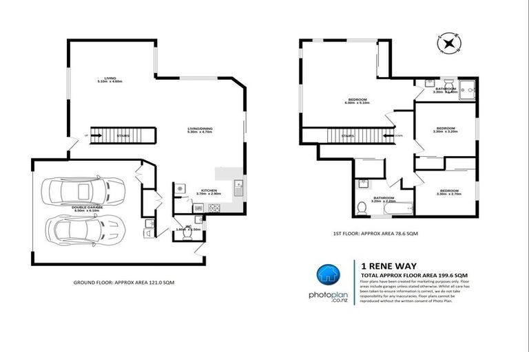
1 Rene Way, Huntington, Hamilton, 3210 is a Residential property built in 2007 with 3 bedrooms, 2 bathrooms and 0 parking spaces. The property is estimated to be valued in the range of $750,000 to $800,000.
The property last sold on 21 March 2025 for an unknown price. It was sold by Lodge Real Estate (Hamilton) Ltd, and took 66 days to sell. On 1 September 2021, 1 Rene Way, Huntington, Hamilton, 3210 had a Rating Valuation with a Capital Value of $740,000, Land Value of $375,000 and Improvement Value of $365,000.
| Date | Type | Price | Agent/Agency |
|---|---|---|---|
| 21 Mar 2025 | $785,000 | Pending Settlement Advice | |
| 15 Jan 2025 | ASKING PRICE | $785,000 | Greg Hugill of Lodge Real Estate (Hamilton) Ltd |
| 21 Sep 2022 | SOLD | $770,000 | Kirn Parmar of Lugtons Limited |
| 9 Jul 2022 | ASKING PRICE | $799,000 | Kirn Parmar of Lugtons Limited |
| 22 May 2018 | SOLD | $560,000 |
Unit 24 Deposited Plan 355972
There are no similar properties in the area that are listed for sale or recently sold.