
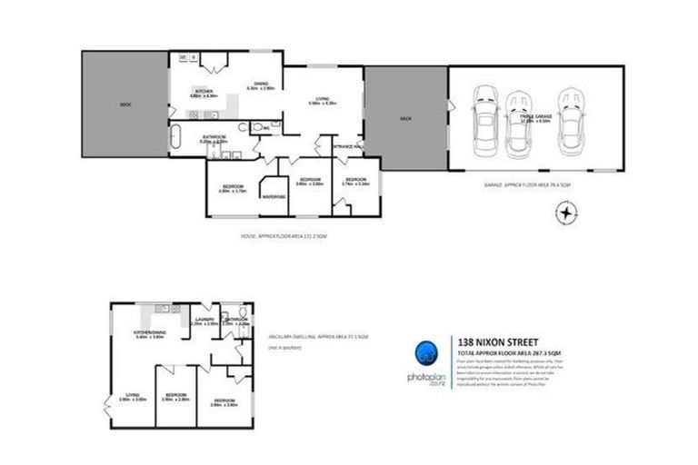
138 Nixon Street, Hamilton East, Hamilton, 3216 is a Residential property built in 1930 with 5 bedrooms, 2 bathrooms and 0 parking spaces. The property is estimated to be valued in the range of $1,000,000 to $1,100,000.
The property last sold on 15 March 2022 for $1,082,500. On 1 September 2021, 138 Nixon Street, Hamilton East, Hamilton, 3216 had a Rating Valuation with a Capital Value of $1,100,000, Land Value of $590,000 and Improvement Value of $510,000.
| Date | Type | Price | Agent/Agency |
|---|---|---|---|
| 10 Aug 2023 | ASKING PRICE | $1,095,000 | Tim Clarke of Harcourts Hamilton Glenview |
| 5 May 2022 | Rented | $585 | Cisholi Gosai of Lodge City Rentals Ltd |
| 15 Mar 2022 | SOLD | $1,082,500 | |
| 11 Jul 2013 | SOLD | $436,000 | Basil Lennan of Bayleys Waikato - Success Realty Ltd |
| 15 Jun 2013 | AUCTION | Price Not Disclosed | Basil Lennan of Bayleys Waikato - Success Realty Ltd |
| 15 Dec 2004 | SOLD | $269,000 | Choy Tak Hong of First National Lugton |
| 16 Oct 2004 | DEADLINE PRIVATE TREATY | $299,000 | Choy Tak Hong of First National Lugton |
| 23 Jul 2004 | SOLD | $250,000 | |
| 15 Feb 1993 | SOLD | $165,000 |
Lot 1 Deposited Plan 36045
There are no similar properties in the area that are listed for sale or recently sold.