
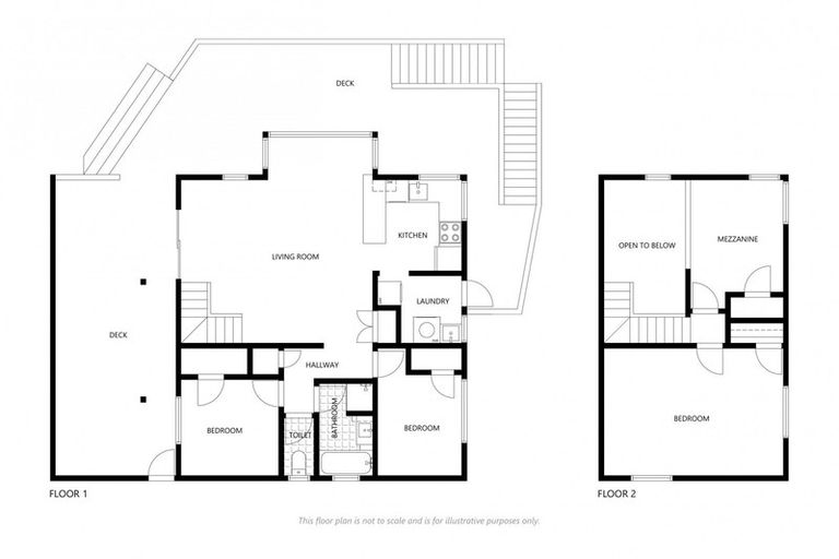
18b Richan Street, Glenview, Hamilton, 3206 is a Residential property built in 1980 with 4 bedrooms, 1 bathroom and 0 parking spaces. The property is estimated to be valued in the range of $650,000 to $700,000.
The property last sold on 19 April 2022 for $710,000. It was sold by Tall Poppy Hamilton, and took 85 days to sell. On 1 September 2021, 18b Richan Street, Glenview, Hamilton, 3206 had a Rating Valuation with a Capital Value of $700,000, Land Value of $375,000 and Improvement Value of $325,000.
| Date | Type | Price | Agent/Agency |
|---|---|---|---|
| 19 Apr 2022 | SOLD | $710,000 | Andrew Townsend & Cory Townsend of Tall Poppy Hamilton |
| 25 Jan 2022 | ENQUIRIES OVER | $735,000 | Andrew Townsend & Cory Townsend of Tall Poppy Hamilton |
| 1 May 2017 | SOLD | $419,500 | |
| 17 Feb 2017 | ASKING PRICE | $429,000 | Wendy Knight of Monarch Real Estate Ltd Glenview |
| 14 Mar 1986 | SOLD | $12,000 |
House 2 Deposited Plan South Auckland 43973
There are no similar properties in the area that are listed for sale or recently sold.