
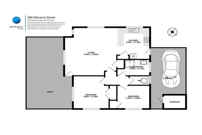
30a Marama Street, Frankton, Hamilton, 3204 is a Residential property built in 1989 with 2 bedrooms, 1 bathroom and 1 parking space. The property is estimated to be valued in the range of $600,000 to $650,000.
The property last sold on 3 October 2024 for $643,000. It was sold by Lodge Real Estate Dinsdale. On 1 September 2021, 30a Marama Street, Frankton, Hamilton, 3204 had a Rating Valuation with a Capital Value of $630,000, Land Value of $400,000 and Improvement Value of $230,000.
| Date | Type | Price | Agent/Agency |
|---|---|---|---|
| 3 Oct 2024 | SOLD | $643,000 | |
| 27 Sep 2024 | ASKING PRICE | $619,000 | Jan Barnett of Lugtons Limited, (Licensed: Reaa 2008) |
| 3 Dec 2020 | Rented | $465 | Lisa Brown of Lodge City Rentals Ltd, (Licensed: Reaa 2008) |
| 13 Nov 2019 | Rented | $445 | Nic Elliottyson of Lodge City Rentals Ltd, (Licensed: Reaa 2008) |
| 15 Mar 2019 | SOLD | $400,000 | |
| 15 Dec 2007 | DEADLINE PRIVATE TREATY | $249,000 | Jo & Brian Foley of Lodge Real Estate |
| 22 Jul 2002 | SOLD | $119,500 | |
| 5 Nov 1992 | SOLD | $85,000 | |
| 1 May 1989 | SOLD | $74,000 |
Flat C Deposited Plan South Auckland 52065
There are no similar properties in the area that are listed for sale or recently sold.