
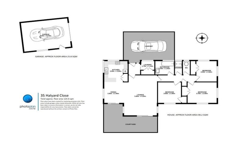
35 Halyard Close, Flagstaff, Hamilton, 3210 is a Residential property built in 1986 with 3 bedrooms, 1 bathroom and 0 parking spaces. The property is estimated to be valued in the range of $800,000 to $900,000.
The property last sold on 28 August 2024 for $795,000. It was sold by Lugtons Chartwell (River Road) Ltd, (Licensed: Reaa 2008), and took 97 days to sell. On 1 September 2021, 35 Halyard Close, Flagstaff, Hamilton, 3210 had a Rating Valuation with a Capital Value of $890,000, Land Value of $560,000 and Improvement Value of $330,000.
| Date | Type | Price | Agent/Agency |
|---|---|---|---|
| 28 Aug 2024 | SOLD | $795,000 | |
| 21 Mar 2024 | ASKING PRICE | $799,000 | Melissa Wilton of Lugtons Chartwell (River Road) Ltd, (Licensed: Reaa 2008) |
| 28 Oct 2016 | SOLD | $550,000 | |
| 19 Mar 2004 | SOLD | $550,000 | |
| 1 Jan 1998 | SOLD | $191,000 | |
| 14 Feb 1996 | SOLD | $172,000 | |
| 1 Feb 1991 | SOLD | $139,000 | |
| 15 Jun 1988 | SOLD | $124,000 |
Lot 22 Deposited Plan South Auckland 42372
There are no similar properties in the area that are listed for sale or recently sold.