
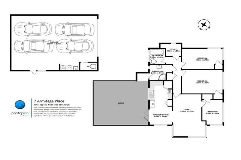
7 Armitage Place, Fairfield, Hamilton, 3214 is a Residential property built in 1940 with 3 bedrooms, 2 bathrooms and 0 parking spaces. The property is estimated to be valued in the range of $750,000 to $800,000.
The property last sold on 23 June 2025 for an unknown price. On 1 September 2021, 7 Armitage Place, Fairfield, Hamilton, 3214 had a Rating Valuation with a Capital Value of $840,000, Land Value of $580,000 and Improvement Value of $260,000.
| Date | Type | Price | Agent/Agency |
|---|---|---|---|
| 23 Jun 2025 | $0 | Pending Settlement Advice | |
| 9 Apr 2025 | ASKING PRICE | $695,000 | Heather Whyte of Lugtons Real Estate |
| 29 Oct 2019 | SOLD | $560,000 | Mike Thomas of Lodge Real Estate Ltd, (Licensed: Reaa 2008) |
| 27 Sep 2019 | ASKING PRICE | $569,000 | Mike Thomas of Lodge Real Estate Ltd, (Licensed: Reaa 2008) |
| 16 Jun 2003 | SOLD | $159,500 |
Lot 48 Deposited Plan South Auckland 1110
There are no similar properties in the area that are listed for sale or recently sold.