
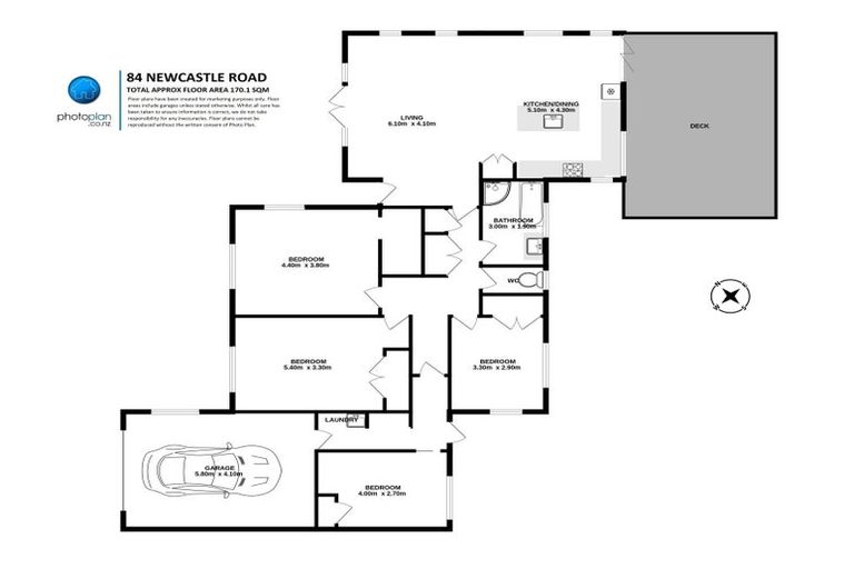
84 Newcastle Road, Dinsdale, Hamilton, 3204 is a Residential property built in 1960 with 4 bedrooms, 1 bathroom and 0 parking spaces. The property is estimated to be valued in the range of $800,000 to $900,000.
The property last sold on 14 December 2008 for $355,000. On 1 September 2021, 84 Newcastle Road, Dinsdale, Hamilton, 3204 had a Rating Valuation with a Capital Value of $880,000, Land Value of $730,000 and Improvement Value of $150,000.
| Date | Type | Price | Agent/Agency |
|---|---|---|---|
| 30 May 2024 | Rented | $700 | Quinovic Hamilton of Quinovic Hamilton |
| 17 Jul 2023 | Rented | $680 | Quinovic Hamilton of Quinovic Hamilton |
| 24 Jun 2023 | BY NEGOTIATION | Price Not Disclosed | Melissa Wilton of Lugtons Ltd, (Licensed: Reaa 2008) |
| 14 Dec 2008 | SOLD | $355,000 | |
| 9 Jun 2007 | DEADLINE PRIVATE TREATY | $405,000 | Hamish Gordon of Lodge Real Estate |
| 10 May 2006 | SOLD | $375,000 | Lynne Johnson of Harcourts Monarch Real Estate Ltd |
| 5 Apr 2006 | DEADLINE PRIVATE TREATY | $380,000 | Lynne Johnson of Harcourts Monarch Real Estate Ltd |
| 8 Dec 2004 | DEADLINE PRIVATE TREATY | $255,000 | Don Wilson of Harcourts Monarch |
| 27 Nov 2004 | SOLD | $250,000 | Don Wilson of Harcourts Monarch |
| 30 Aug 2001 | SOLD | $181,000 | |
| 17 Feb 1999 | SOLD | $175,000 | |
| 24 Jan 1995 | SOLD | $143,500 | |
| 16 Jun 1994 | SOLD | $124,000 | |
| 18 Apr 1988 | SOLD | $85,000 |
Lot 11 Deposited Plan South Auckland 3541
There are no similar properties in the area that are listed for sale or recently sold.