
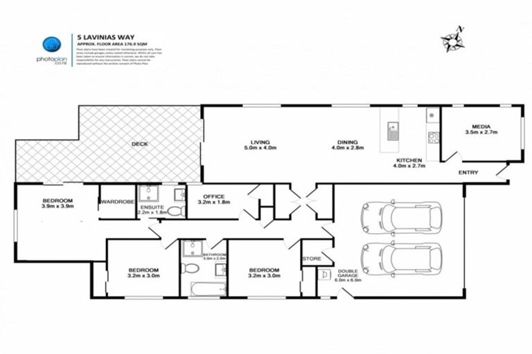
5 Lavinias Way, Chartwell, Hamilton, 3210 is a Residential property built in 2018 with 3 bedrooms, 1 bathroom and 0 parking spaces. The property is estimated to be valued in the range of $900,000 to $1,000,000.
The property last sold on 2 March 2018 for $305,000. On 1 September 2021, 5 Lavinias Way, Chartwell, Hamilton, 3210 had a Rating Valuation with a Capital Value of $1,050,000, Land Value of $435,000 and Improvement Value of $615,000.
| Date | Type | Price | Agent/Agency |
|---|---|---|---|
| 11 Mar 2019 | ASKING PRICE | $749,000 | Babak Paymani of Lugtons Ltd, (Licensed: Reaa 2008) |
| 2 Mar 2018 | SOLD | $305,000 |
Lot 508 Deposited Plan 523265
There are no similar properties in the area that are listed for sale or recently sold.